| 販売価格 |
3,490万円
|
|---|---|
| 土地面積 | 618.7㎡ |
| 建物面積 | 400.65㎡ |
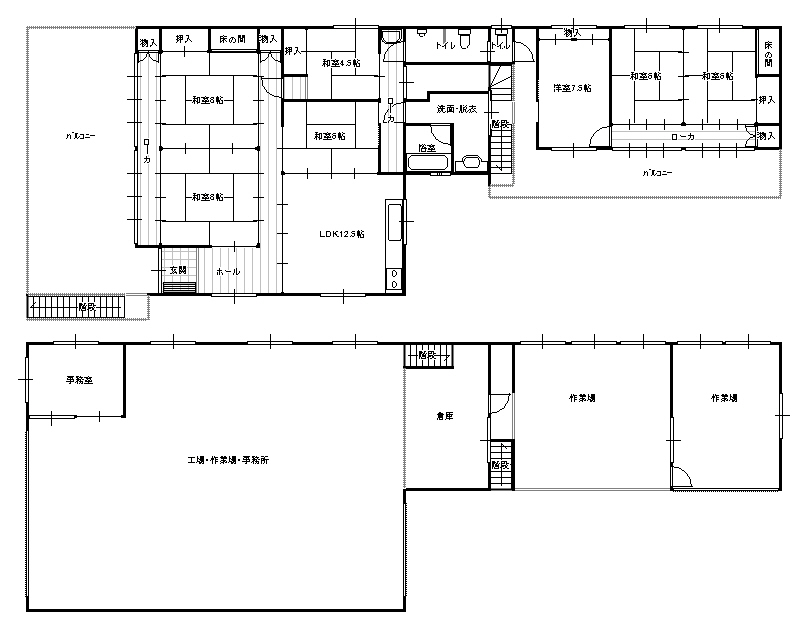
| 間取り詳細 | |
| 建築年月 | 1979年10月 |
| 階数 | 2階建て |
| 所在地 | 三重県名張市夏見100-1 |
|---|---|
| 交通 | 近鉄大阪線 名張駅 徒歩12分 |
『自動車修理工場・居住』
国道165号線沿い!自動車修理工場として稼働中です。リフト2台あり設備や備品などもあります!
自動車関連なら直ぐに利用できます!2階は居住スペースになっています。
| 新築・中古・土地 | 中古 | 取引態様 | 専任媒介 |
|---|---|---|---|
| 引渡し | 相談 | 現況 | 居住中 |
| 総戸数・区画数 | 販売戸数・区画数 | ||
| 取引条件の有効期限 | 2025年10月16日 | 土地権利 | 所有権 |
| セットバック | 私道負担面積 | -㎡ | |
| 都市計画 | 非線引き区域 | 用途地域 | 準工業地域 |
| 建蔽率 | 60% | 容積率 | 200% |
| 接道状況 | 南東側 12m 公道 | 開発許可番号 | |
| 宅地造成工事許可番号 | 上水道 | 公共水道 | |
| 下水道 | 本下水 | ガス | 都市ガス |
| 間取り | 建物構造 | 鉄骨造 | |
|---|---|---|---|
| 建築確認番号 | リフォーム | ||
| 駐車場 | 駐車場スペース5台分以上 |
| 環境 | |||
|---|---|---|---|
| 諸費用等 | |||
| 駐車場、駐輪場等 | |||
| その他費用等 | |||
| 法令上制限等 | |||
| その他重要事項等 | 現状でのお引渡しとし売主の契約不適合は全て免責します。 | ||
0595622221
所在地 三重県名張市希央台4番町53番地
売買不動産/その他/投資用・事業用不動産
不動産業者免許番号 三重県知事(6)第2711号
不動産業者所属団体 公益社団法人全日本不動産協会
公正取引協議会加盟事業者 東海不動産公正取引協議会